Zobacz wszystkie (10)
O nas
Nazywam się Jakub Herdzik i jako rzeczoznawca majątkowy z pasją podchodzę do nieruchomości.
Posiadam uprawnienia zawodowe o numerze 7509. Specjalizuję się w szeroko rozumianej wycenie nieruchomości na całym terenie województwa zachodniopomorskiego. Swoim klientom oferuję fachową i szybką pomoc w uzyskaniu informacji o wartości nieruchomości. Jestem członkiem Zachodniopomorskiego Stowarzyszenia Rzeczoznawców Majątkowych.
Ponadto pomagam przy procesach podziału budynków, wyodrębnianiu lokali.
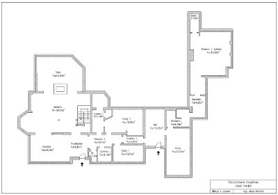
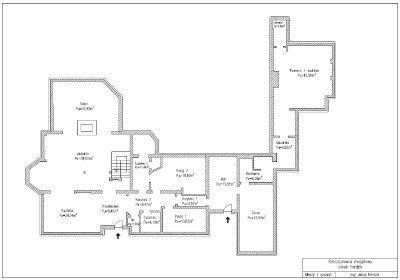
Wykonuję inwentaryzacje budynków do różnych celów - rysunki tworzę w programach typu Autocad.
Dzięki współpracy ze specjalistami z branży geodezji, architektury i budownictwa pomagam realizować inne powierzone zadania.
Zachęcam do kontaktu - zawsze chętnie porozmawiam na temat Państwa nieruchomości i doradzę najlepsze rozwiązania.
Posiadam uprawnienia zawodowe o numerze 7509. Specjalizuję się w szeroko rozumianej wycenie nieruchomości na całym terenie województwa zachodniopomorskiego. Swoim klientom oferuję fachową i szybką pomoc w uzyskaniu informacji o wartości nieruchomości. Jestem członkiem Zachodniopomorskiego Stowarzyszenia Rzeczoznawców Majątkowych.
Ponadto pomagam przy procesach podziału budynków, wyodrębnianiu lokali.
Wykonuję inwentaryzacje budynków do różnych celów - rysunki tworzę w programach typu Autocad.
Dzięki współpracy ze specjalistami z branży geodezji, architektury i budownictwa pomagam realizować inne powierzone zadania.
Zachęcam do kontaktu - zawsze chętnie porozmawiam na temat Państwa nieruchomości i doradzę najlepsze rozwiązania.
Sprawdzona Firma
Zweryfikowaliśmy dane rejestrowe przedsiębiorstwa w GUS i potwierdziliśmy, że wskazana osoba kontaktowa jest reprezentantem firmy. Dlatego firma otrzymała znak Sprawdzona Firma.
Firma sprawdzona w GUS
Zweryfikowaliśmy dane rejestrowe przedsiębiorstwa w GUS.
Opinie
Na Oferteo od 4 lata
| 11 współprac
5 gwiazdek 100%
4 gwiazdki 0%
3 gwiazdki 0%
2 gwiazdki 0%
1 gwiazdka 0%
842054
markValuePositive
Paweł
2024-03-19 09:21:08.77326
-1
false
Serdecznie polecam współpracę z panem Jakubem.
Wycena wykonana rzetelnie i terminowo.
Wycena wykonana rzetelnie i terminowo.
false
false
774552
markValuePositive
Weronika
K
2023-08-30 21:06:30.515593
-1
false
Pan Jakub jest profesjonalistą w każdym calu i robi więcej niż należy do jego obowiązków.
Ogromna wiedza, opanowanie, świetna komunikacja z klientem, a przy tym z gwarancją rozsądnej ceny - z czystym sumieniem mogę polecić Pana Jakuba do każdego rodzaju wycen.
Ogromna wiedza, opanowanie, świetna komunikacja z klientem, a przy tym z gwarancją rozsądnej ceny - z czystym sumieniem mogę polecić Pana Jakuba do każdego rodzaju wycen.
false
false
770095
markValuePositive
Joanna
S
2023-08-14 19:58:44.979002
12205593
Potrzebuję agenta nieruchomości do wyceny mieszkania, 53m², Krąg
false
Przemiła współpraca, konkretne informacje, szybka komunikacja.
Naprawdę polecam.
Naprawdę polecam.
false
false
761799
markValuePositive
Ludomira
2023-07-18 22:01:02.56542
11863645
Potrzebuję agenta nieruchomości do wyceny domu typu bliźniak, 81-100m², Sławoborze
false
Bardzo miły i uprzejmy Pan Jakub.
Rozmowy przebiegły bardzo pozytywnie i konkretne informacje dotyczące oceny, jestem zadowolona.
Rozmowy przebiegły bardzo pozytywnie i konkretne informacje dotyczące oceny, jestem zadowolona.
false
false
744494
markValuePositive
Paweł
2023-05-26 08:35:16.576406
11519191
Potrzebuję agenta nieruchomości do wyceny mieszkania, 51-60m², Kołobrzeg
false
Super profesjonalizm ze strony firmy ESCENA, szybko, konkretnie.
ESCENA Jakub Herdzik
2023-05-28 13:15:46.883308
Panie Pawle, bardzo dziękuję za opinię i za miłą współpracę.
745020
false
false
662668
markValuePositive
Piotr
Ś
2022-11-08 19:03:39.623279
9845734
Zlecenie dla agencji nieruchomości, 3800m², Police
false
Solidnie i rzetelnie wykonana praca, bezproblemowy kontakt, szybka realizacja zlecenia wyceny nieruchomości.
Szczerze polecam.
Szczerze polecam.
ESCENA Jakub Herdzik
2022-11-09 08:10:13.764003
Panie Piotrze, bardzo dziękuję za opinię, oraz za miłą i sprawną współpracę.
Pozdrawiam serdecznie.
662791
false
true
648903
markValuePositive
Dariusz
J
2022-09-30 09:58:37.665242
-1
false
Pan Jakub to specjalista w swoim fachu.
Współpraca z nim przebiegła szybko, sprawnie i bezproblemowo.
Operat otrzymałem nawet przed obiecanym terminem. Szczerze polecam.
Współpraca z nim przebiegła szybko, sprawnie i bezproblemowo.
Operat otrzymałem nawet przed obiecanym terminem. Szczerze polecam.
false
false
648057
markValuePositive
Anna
C
2022-09-28 09:17:58.973896
9610399
Zapytanie o agencję nieruchomości, 1800m², Szczecin
false
Szczerze polecam współpracę z Panem Jakubem. Duża kultura w podejściu do klienta, elastyczność, sprawna i szybka komunikacja, bezproblemowość.
ESCENA Jakub Herdzik
2022-10-18 14:04:10.127531
Pani Anno bardzo dziękuję za opinię i przede wszystkim za miłą współpracę.
655169
false
true
633583
markValuePositive
Joanna
S
2022-08-17 18:06:58.29571
-1
false
Przemiła współpraca, zrozumienie klienta, profesjonalna i rzetelna wycena i pomoc w zdobyciu wszystkich niezbędnych dokumentów.
false
false
625036
markValuePositive
Krzysztof
P
2022-07-22 14:22:36.926201
-1
false
Pracując również jako rzeczoznawca miałem wielokrotnie okazję współpracować z Jakubem.
Rzetelność, duża wiedza i terminowość to nieocenione atuty współpracy.
Rzetelność, duża wiedza i terminowość to nieocenione atuty współpracy.
false
false
568019
markValuePositive
Damian
K
2022-02-03 10:56:40.862816
7250153
Zatrudnię agencję nieruchomości do wyceny mieszkania, 61-80m², Szczecin
false
Współpracę oceniam bardzo pozytywnie. Pełen profesjonalizm!
ESCENA Jakub Herdzik
2022-02-03 13:22:49.201181
Panie Damianie dziękuję serdecznie i pozdrawiam!
568082
false
true
566801
markValuePositive
Daniela
J
2022-01-31 10:09:16.634889
7503426
Potrzebuję agenta nieruchomości do wyceny mieszkania, 61-80m², Szczecin
false
Pan Jakub Herdzik bardzo solidnie i obowiązkowo podchodzi do polecanego zadania. Jest osobą kompetentną i uczciwą. Polecam
ESCENA Jakub Herdzik
2022-01-31 11:28:49.76973
Bardzo dziękuję za opinię i za zaufanie!
Przemiły kontakt i dlatego współpraca na odległość nie stanowiła dla nas problemu.
Pozdrawiam serdecznie.
566847
false
true
566120
markValuePositive
Łukasz
P
2022-01-28 19:52:31.17897
7277126
Potrzebuję agenta nieruchomości do wyceny mieszkania, 50m², Świdwin
false
Profesjonalizm i doświadczenie. Szybka obsługa klienta. Same plusy, miła atmosfera
ESCENA Jakub Herdzik
2022-01-29 19:01:39.779443
Dziękuję Panie Łukaszu!
Mam nadzieję, że sprawa z kredytem zakończyła się sukcesem.
Pozdrawiam serdecznie.
566379
false
true
565068
markValuePositive
Krystian
K
2022-01-26 11:27:29.190487
7466636
Potrzebuję agenta nieruchomości do wyceny działki budowlanej, 1000m², Szczecin
false
Polecam współpracę z Panem Jakubem. Szybki czas realizacji i rzetelność oraz jakość wykonania usług przemawiają
ESCENA Jakub Herdzik
2022-01-26 12:23:19.430956
Bardzo dziękuję za opinię i za współpracę Panie Krystianie.
Pozdrawiam serdecznie!
565084
false
true
563286
markValuePositive
Piotr
K
2022-01-20 22:06:07.611644
-1
false
Pan Jakub mimo stosunkowo niewielkiego doświadczenia na rynku rzeczoznawców charakteryzuje się profesjonalizmem i jednocześnie młodzieńczym polotem. Ta idealna mieszanka cech sprawia, że na pewno moja kolejna wycena będzie również u Pana Jakuba.
false
false
560947
markValuePositive
Tomasz
B
2022-01-14 09:10:39.98028
-1
false
Szybka reakcja na kontakt i sprawna wycena. Bezproblemowa współpraca w pozytywnej, atmosferze. Szczerze polecam.
false
false
550413
markValuePositive
Marcin
S
2021-12-08 14:59:29.831622
-1
false
Profesjonalnie i sumiennie, do tego miło i sprawnie! Polecam gorąco.
false
false
532693
markValuePositive
Jarosław
U
2021-10-20 09:14:04.099982
-1
false
Profesjonalnie wykonana usługa. Duża wiedza oraz doświadczenie pozwalające w szybki sposób rozwiązać problem z moją nieruchomością.
false
false
Specjaliści z Twojej okolicy
Oferty
Podział wewnętrzny budynków, wyodrębnianie lokali, inwentaryzacje, rysunki techniczne.
Pomagam przy procesach wewnętrznych podziału budynków, wyodrębnianiu lokali, zakładaniu ksiąg wieczystych, sprostowywaniu zapisów w księgach wieczystych.
Wykonuję inwentaryzacje budynków do różnych celów - rysunki tworzę w programach typu Autocad.
Wycena nakładów na prace remontowe, kosztorys prac naprawczych.
od 500 do 3000 zł
Jako rzeczoznawca majątkowy oprócz typowych wycen nieruchomości wykonuję również wyceny nakładów na prace remontowe spowodowane m.in. zalaniem mieszkań. Wyceny takie są wsparciem przy ubieganiu się właściwego i realnego odszkodowania od ubezpieczyciela za poniesione straty.
Podział wewnętrzny budynków, wyodrębnianie lokali, inwentaryzacje, rysunki techniczne.
Oferuję fachową i szybką pomoc w uzyskaniu informacji o wartości nieruchomości.
Jako uprawniony rzeczoznawca majątkowy wykonuję operaty szacunkowe z wyceną nieruchomości dla różnych celów i potrzeb. Ceniąc Państwa czas dokładam starań, aby zlecenia realizować w możliwie jak najkrótszym czasie jednocześnie stawiając na rzetelność i jakość wykonywanych przeze mnie dokumentów.
Co chcesz zlecić lub kupić?
Wybierz usługę, której potrzebujesz, aby złożyć zapytanie:
Nieruchomości (3)
•
Wycena nieruchomości•
Pomoc w sprzedaży nieruchomości•
Pomoc w zakupie nieruchomościUsługi budowlane (1)
•
Usługi geodezyjneUsługi architektoniczne (2)
•
Projektowanie domów•
Projektowanie elewacjiDla domu (2)
•
Kosztorysowanie, ekspertyzy, audyty energetyczne•
Świadectwa energetyczne
Powiązane produkty i usługi:
Adaptacja projektu, Budowa domów, Kierownik budowy, Kredyt, Nadzór budowlany, Ogrodzenia Szczecin, Remonty Szczecin, Remonty mieszkań Szczecin, Ubezpieczenia Szczecin, Ubezpieczenie na życie Szczecin
O Firmie
Adres
Ulica
Legnicka 1/6Kod pocztowy
70-134Miasto
SzczecinNIP
6711769382Godziny pracy
Brak informacji
Preferowana forma kontaktu
czat, e-mail, telefon
Obszar działania
Zachodniopomorskie
Dane rejestrowe
Firma
Nazwa firmy
ESCENA JAKUB HERDZIK
Imię (pierwsze)
JAKUB
Nazwisko
HERDZIK
Data rozpoczęcia działalności
2021-01-19
NIP
6711769382
Regon
387963508
Siedziba
Kraj
Polska
Województwo
ZACHODNIOPOMORSKIE
Powiat
Szczecin
Gmina
Szczecin
Miejscowość
Szczecin
Kod pocztowy
70134
Ulica
ul. Legnicka
Numer nieruchomości
1
Numer lokalu
6
Zakres działalności (PKD)
Kod PKD
Nazwa
6831Z
POŚREDNICTWO W OBROCIE NIERUCHOMOŚCIAMI
Przeważające PKD
9001Z
DZIAŁALNOŚĆ ZWIĄZANA Z WYSTAWIANIEM PRZEDSTAWIEŃ ARTYSTYCZNYCH
7729Z
WYPOŻYCZANIE I DZIERŻAWA POZOSTAŁYCH ARTYKUŁÓW UŻYTKU OSOBISTEGO I DOMOWEGO
7112Z
DZIAŁALNOŚĆ W ZAKRESIE INŻYNIERII I ZWIĄZANE Z NIĄ DORADZTWO TECHNICZNE