Zobacz wszystkie (5)
O nas
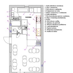
Zajmuję się tworzeniem projektów technologii obiektów gastronomii na potrzeby sanepidu, inwestorów.
Moje doświadczenie w połączeniu z pasją do gastronomii oraz nowoczesnymi rozwiązaniami technologicznymi pozwala mi oferować kompleksowe usługi projektowe, które pomagają stworzyć idealną przestrzeń gastronomiczną. Moim celem jest dostosowanie każdego projektu do specyfiki klienta, aby zapewnić mu funkcjonalność, estetykę oraz optymalizację procesów gastronomicznych.
orzystam z nowoczesnych narzędzi projektowych, które pozwalają mi dopracować projekt z uwzględnieniem wszystkich potrzeb klienta. Dzięki temu mogę zoptymalizować koszty inwestycyjne i zminimalizować ryzyko pojawienia się kosztownych błędów projektowych.
Dzięki mojemu doświadczeniu i wiedzy, tworzę projekty, które są nie tylko estetyczne, ale przede wszystkim funkcjonalne i zgodne z obowiązującymi normami.
Moje doświadczenie w połączeniu z pasją do gastronomii oraz nowoczesnymi rozwiązaniami technologicznymi pozwala mi oferować kompleksowe usługi projektowe, które pomagają stworzyć idealną przestrzeń gastronomiczną. Moim celem jest dostosowanie każdego projektu do specyfiki klienta, aby zapewnić mu funkcjonalność, estetykę oraz optymalizację procesów gastronomicznych.
orzystam z nowoczesnych narzędzi projektowych, które pozwalają mi dopracować projekt z uwzględnieniem wszystkich potrzeb klienta. Dzięki temu mogę zoptymalizować koszty inwestycyjne i zminimalizować ryzyko pojawienia się kosztownych błędów projektowych.
Dzięki mojemu doświadczeniu i wiedzy, tworzę projekty, które są nie tylko estetyczne, ale przede wszystkim funkcjonalne i zgodne z obowiązującymi normami.
Opinie
Wykonawca nie ma jeszcze opinii.
Co chcesz zlecić lub kupić?
Wybierz usługę, której potrzebujesz, aby złożyć zapytanie:
Usługi architektoniczne (1)
•
Inne usługi architektoniczneProjektowanie (1)
•
Projektowanie inżynieryjne
Powiązane produkty i usługi:
Adaptacja projektu, Aranżacja wnętrz, Kierownik budowy, Nadzór budowlany, Projektowanie konstrukcji stalowych Białogard
O Firmie
Adres
Ulica
Pomorska 26/2Kod pocztowy
78-200Miasto
BiałogardNIP
841-150-81-06Godziny pracy
Brak informacji
Preferowana forma kontaktu
e-mail, telefon
Obszar działania
Zachodniopomorskie
Dane rejestrowe
Firma
Nazwa firmy
Plangastro Henryk Itrich
Imię (pierwsze)
HENRYK
Nazwisko
ITRICH
Data rozpoczęcia działalności
2025-03-19
NIP
8411508106
Regon
771525346
Siedziba
Kraj
Polska
Województwo
ZACHODNIOPOMORSKIE
Powiat
białogardzki
Gmina
Białogard
Miejscowość
Białogard
Kod pocztowy
78200
Ulica
ul. Pomorska
Numer nieruchomości
26
Zakres działalności (PKD)
Kod PKD
Nazwa
7020Z
DORADZTWO W ZAKRESIE PROWADZENIA DZIAŁALNOŚCI GOSPODARCZEJ I POZOSTAŁE DORADZTWO W ZAKRESIE ZARZĄDZANIA
Przeważające PKD
7499Z
WSZELKA POZOSTAŁA DZIAŁALNOŚĆ PROFESJONALNA, NAUKOWA I TECHNICZNA, GDZIE INDZIEJ NIESKLASYFIKOWANA
7111Z
DZIAŁALNOŚĆ W ZAKRESIE ARCHITEKTURY
5611Z
RESTAURACJE
4712Z
POZOSTAŁA SPRZEDAŻ DETALICZNA NIEWYSPECJALIZOWANA
4664Z
SPRZEDAŻ HURTOWA POZOSTAŁYCH MASZYN I URZĄDZEŃ