O nas
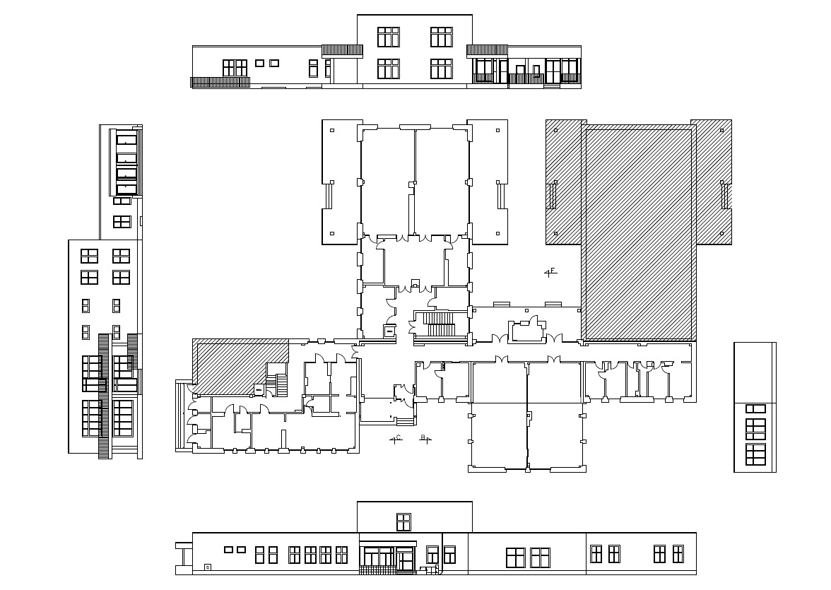
NWENTARYZACJE BUDOWLANE, ARCHITEKTONICZNE
EKSPRESOWA REALIZACJA:
Gwarantujemy najkrótsze terminy realizacji na rynku.
TERMINOWOŚĆ:
Dotrzymanie deklarowanego terminu wykonania jest dla nas priorytetem.
PROFESJONALIZM, DOŚWIADCZENIE:
Nasz zespół to inżynierowie budownictwa i architekci z kilkunastoletnim doświadczeniem w branży
TECHNOLOGIE:
Wykorzystujemy nowoczesne technologie pomiarowe pozwalające na maksymalną efektywność
INDYWIDUDALNE PODEJŚCIE :
Jesteśmy zorientowani na potrzeby klienta i na bieżąco dobieramy najlepsze rozwiązania
OFERTA :
Inwentaryzacje budynków i instalacji :
- usługowych
- wielorodzinnych
- przemysłowych
- publicznych
- biurowych
- restauracje
- szkoły
- sklepy
- wnętrza mieszkalne
- domy
EFEKTY w 5 prostych krokach:
1. USTALIMY rodzaj i zakres inwentaryzacji
- rodzaj obiektu
- powierzchnia
- typ i przeznaczenie inwentaryzacji
2. PRZEANALIZUJEMY istniejącą dokumentację
3. DOKONAMY wizji lokalnej i pomiarów wybraną metodą
4. OPRACUJEMY wyniki
5. DOSTARCZYMY gotową dokumentację CAD
WSPÓŁPRACUJEMY z biurami projektowymi, agentami nieruchomości, deweloperami oraz klientami indywidualnymi.
EKSPRESOWA REALIZACJA:
Gwarantujemy najkrótsze terminy realizacji na rynku.
TERMINOWOŚĆ:
Dotrzymanie deklarowanego terminu wykonania jest dla nas priorytetem.
PROFESJONALIZM, DOŚWIADCZENIE:
Nasz zespół to inżynierowie budownictwa i architekci z kilkunastoletnim doświadczeniem w branży
TECHNOLOGIE:
Wykorzystujemy nowoczesne technologie pomiarowe pozwalające na maksymalną efektywność
INDYWIDUDALNE PODEJŚCIE :
Jesteśmy zorientowani na potrzeby klienta i na bieżąco dobieramy najlepsze rozwiązania
OFERTA :
Inwentaryzacje budynków i instalacji :
- usługowych
- wielorodzinnych
- przemysłowych
- publicznych
- biurowych
- restauracje
- szkoły
- sklepy
- wnętrza mieszkalne
- domy
EFEKTY w 5 prostych krokach:
1. USTALIMY rodzaj i zakres inwentaryzacji
- rodzaj obiektu
- powierzchnia
- typ i przeznaczenie inwentaryzacji
2. PRZEANALIZUJEMY istniejącą dokumentację
3. DOKONAMY wizji lokalnej i pomiarów wybraną metodą
4. OPRACUJEMY wyniki
5. DOSTARCZYMY gotową dokumentację CAD
WSPÓŁPRACUJEMY z biurami projektowymi, agentami nieruchomości, deweloperami oraz klientami indywidualnymi.
Opinie
Wykonawca nie ma jeszcze opinii.
Oferty
INWENTARYZACJA budowlana do projektu BUDYNEK usługowy, mieszkalny 24h
Polska
- Gliwice
INWENTARYZACJE BUDOWLANE, ARCHITEKTONICZNE
EKSPRESOWA REALIZACJA:
Gwarantujemy najkrótsze terminy realizacji na rynku.
TERMINOWOŚĆ:
Dotrzymanie deklarowanego terminu wykonania jest dla nas priorytetem.
PROFESJONALIZM, DOŚWIADCZENIE:
Nasz zespół to inżynierowie budownictwa i architekci z kilkunastoletnim doświadczeniem w branży
TECH...NOLOGIE:
Wykorzystujemy nowoczesne technologie pomiarowe pozwalające na maksymalną efektywność
INDYWIDUDALNE PODEJŚCIE :
Jesteśmy zorientowani na potrzeby klienta i na bieżąco dobieramy najlepsze rozwiązania
OFERTA :
Inwentaryzacje budynków i instalacji :
- usługowych
- wielorodzinnych
- przemysłowych
- publicznych
- biurowych
- restauracje
- szkoły
- sklepy
- wnętrza mieszkalne
- domy
EFEKTY w 5 prostych krokach:
1. USTALIMY rodzaj i zakres inwentaryzacji
- rodzaj obiektu
- powierzchnia
- typ i przeznaczenie inwentaryzacji
2. PRZEANALIZUJEMY istniejącą dokumentację
3. DOKONAMY wizji lokalnej i pomiarów wybraną metodą
4. OPRACUJEMY wyniki
5. DOSTARCZYMY gotową dokumentację CAD
WSPÓŁPRACUJEMY z biurami projektowymi, agentami nieruchomości, deweloperami oraz klientami indywidualnymi.
Co chcesz zlecić lub kupić?
Wybierz usługę, której potrzebujesz, aby złożyć zapytanie:
Usługi architektoniczne (5)
•
Projektowanie domów•
Projektowanie budynków komercyjnych•
Projekty przebudowy domów•
Projektowanie elewacji•
Projekty przebudowy budynków komercyjnych
Powiązane produkty i usługi:
Adaptacja projektu, Architekt wnętrz, Kierownik budowy, Nadzór budowlany, Projektowanie biur Gliwice, Projektowanie inżynieryjne Gliwice, Projektowanie mieszkania Gliwice, Przegląd budowlany Gliwice
O Firmie
Adres
Ulica
GliwiceKod pocztowy
44-105Miasto
GliwiceGodziny pracy
Brak informacji
Preferowana forma kontaktu
e-mail, telefon
Obszar działania
Łódzkie, Mazowieckie, Podkarpackie, Zachodniopomorskie, Opolskie, Podlaskie, Pomorskie, Dolnośląskie, Kujawsko-pomorskie, Świętokrzyskie, Lubuskie, Małopolskie, Warmińsko-mazurskie, Lubelskie, Wielkopolskie, Śląskie